Este era el estado de la corrala cuando la comunidad de vecinos decidió encargar a nuestro estudio proyectar y dirigir su rehabilitación, las carreras (vigas) que soportan el corredor en planta primera, así como los pies derechos (pilares) se encontraban gravemente afectados de pudrición.
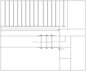
Una de las carreras del frente largo de la corrala hubo de sustituirse parcialmente, la otra, que se había abierto en el encuentro con la carrera perpendicular (ver final del vídeo) , pudo salvarse mediante empresillado, colocando dos chapones de acero perforados a cada lado unidas por varillas roscadas pasantes y cola con resorcina aplicada la superficie de la grieta como se muestra en el detalle.




