De las diferentes formas que se fomenta la rehabilitación de centros históricos en España una es a través la imposición, por parte de las administraciones, de la elaboración de ITEs (Inspección Técnica de Edificios) que obliga a los propietarios a mantener el edificio en buen estado de conservación, otra es mediante la concesión de subvenciones a los particulares y la tercera es mediante actuaciones puntuales que dinamicen la vida de los barrios degradados.
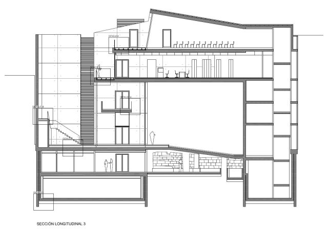
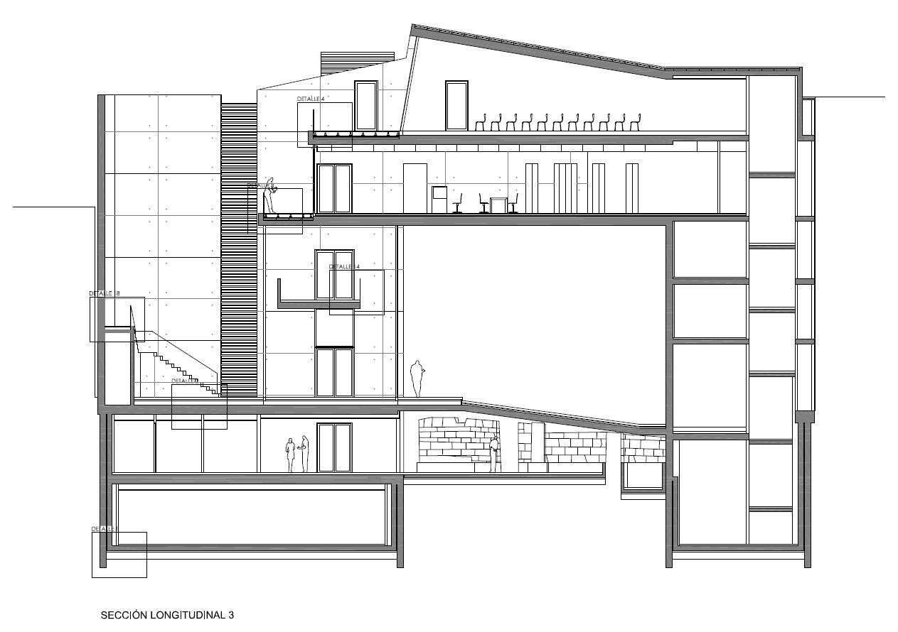
En el ámbito de este tercer tipo de iniciativas surgió el concurso de la Nueva Sede del Colegio de Arquitectos de Aragón Demarcación de Huesca, en un solar del casco viejo, a 20 metros de la catedral gótica, sin edificar desde hacía años por encontrarse el subsuelo con restos arqueológicos en casi un 40% de su superficie, lo que impedía la construcción de garaje y hacía «inviable» su promoción para viviendas.
El programa indicaba una calle peatonal privada y la posibilidad de cimentar sobre los restos arqueológicos, que incluyen suelos romanos y muros de piedra árabes y medievales. Sin embargo, la propuesta presentada respetaba al máximo el espacio acotado por los arqueólogos, apoyando el edificio sobre tres núcleos y elevándolo para dejar una plaza pública que sirviera de encuentro y relación entre arquitectos y ciudadanos, cumpliendo de esta forma el propósito revitalizador del barrio subyacente, al mismo tiempo que se conseguía para el colegio mayor captación de radiación solar y las mejores vistas de la ciudad, completándose así un recorrido por la historia de Huesca a través de su arquitectura.
.

