En 1561 Felipe II traslada la capital del reino a Madrid, eso supone entre otras cosas que la población se triplique en pocos años, creándose grandes demandas de vivenda, abastecimientos y hospedajes.
Surgen entonces numerosas posadas, una tipología castellana para alojamiento temporal de viajeros y comerciantes, sobre todo al sur de la Villa al ser esta la entrada natural de alimentos y recursos de la ciudad.
Estas posadas eran utilizadas por comerciantes y campesinos que venían a la capital a vender sus productos, que quedaban a salvo de posibles ladrones en el interior del edificio, junto con los carros, sus tiros y las monturas, en la planta baja especialmente preparada para este uso.
Eran por tanto para una estancia temporal muy concreta, los huéspedes se quedaban mientras se negociaba la venta de sus melones, mantas, salazones o lo que se hubiese traído para comerciar. Por este motivo las habitaciones, de entre 14 y 19 metros cuadrados, no disponían de baño propio, como sigue ocurriendo en muchas pensiones hoy en día.
Con el tiempo, estos albergues temporales se fueron haciendo fijos y familias enteras, padres, hijos y abuelos, empezaron a vivir en estas miniviviendas con servicios comunes que consistían, únicamente, en un inodoro y un grifo por planta. Esta situación que parece muy lejana se ha mantenido hasta hoy.
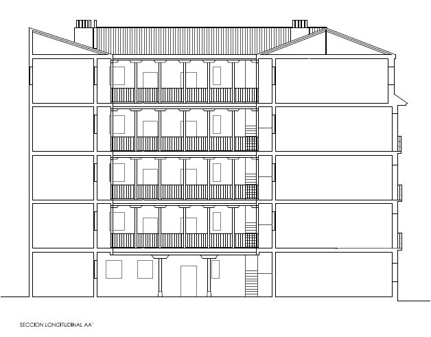
La prueba de esta historia la encontramos en esta corrala, mas concretamente en la disposición y dimensión de los soportes del corredor que se muestran en la sección. Como se puede apreciar, los pies derechos de la planta baja son solo dos en este frente, quedando libres las esquinas y sujetando una carrera de madera de gran canto, mientras que las plantas superiores se sujetan con secciones de madera de 10×12 y carreras de menor dimensión, siempre mas económicas, tanto cuando se construyó el edificio como ahora que se rehabilita y ha de sustituirse alguna pieza de la estructura.
Este esfuerzo estructural de la planta baja, que nos sorprendió en un principio, se explica por la necesidad de maniobrar de los carros y las bestias que tiraban de ellos.
