Esta cocina de carbón está en una corrala que estamos rehabilitando. Aún se encuentran algunas en pisos que han estado vacíos durante décadas, algo bastante habitual en los barrios de Lavapiés y Embajadores de Madrid, y acaban inevitablemente en el vertedero.
Son un recuerdo de como conseguían calentarse las casas, antes del uso de sistemas de calefacción que extraen su energía de la almacenada en los combustibles fósiles, mediante el uso de biomasa.
El carbón vegetal que utilizaba se extraía y transformaba en varias zonas de la península y su producción servía para limpiar los bosques, disminuyendo considerablemente la probabilidad de incendios y creando gran cantidad de puestos de trabajo.
Actualmente toda esa energía solar almacenada en las ramas bajas y árboles caídos se desperdicia, volviendo el CO2 a la atmósfera, con el riesgo ecológico que supone tener el bosque lleno de combustible.
Estos ingenios servían para cocinar, obviamente, pero además caldeaban por radiación el resto de la casa, de ahí que fuesen tan pesadas y sólidas, con mucha masa térmica y recubiertas de ladrillo refractario en muchos casos.
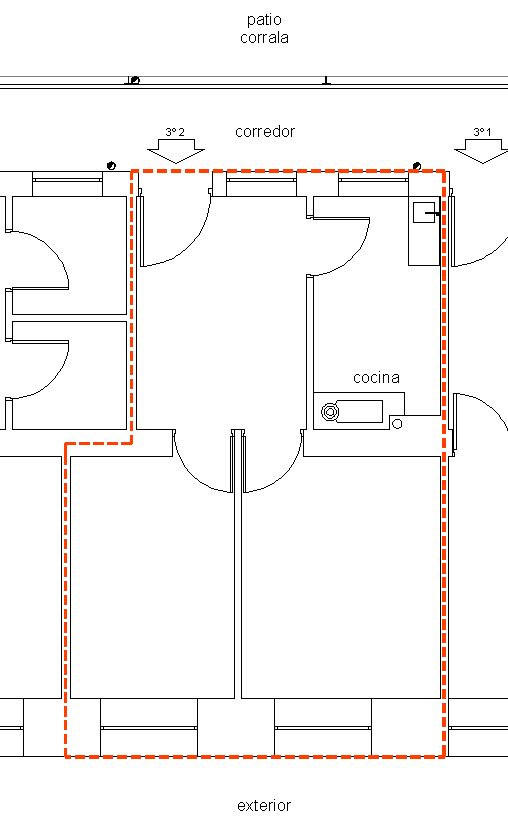
En esta ocasión, como se puede comprobar en la planta, se encuentra prácticamente en el centro de la vivienda, junto al muro de carga central, lo que hace que el calor emitido no se desperdicie y parte de él se vaya acumulando en la masa térmica adyacente, emitiéndose poco a poco , amortiguando así la oscilación térmica entre el día y la noche.
En la planta de esta corrrala también podemos ver la diferencia importante de grosor que existe entre el muro de fachada y el muro de cierre interior que da al corredor abierto. Esta diferencia de dimensiones (mas del doble) nada tiene que ver con la carga que soportan estos muros, siendo incluso mayor la que soporta la línea de carga interior, sino que revela como dicha fachada, es decir su masa térmica, es parte del sistema de climatización de la casa, ya que la fachada da a la calle por la que pasan los vientos y la interior al patio, mas protegido.
De esta forma se almacena el calor en invierno (y se impide que entre en verano), gracias a la inercia térmica de los materiales que conforman la construcción.

No se si las siguen fabricando, si acaso en el Rastro de Madrid puedas encontrar alguna en las tiendas de chimeneas y salamandras.
Si no yo buscaría en algún almacén de derribos de los que hay a las afueras, la práctica normal es tirarlas o venderlas como chatarra, pero si se restauran siguen funcionando perfectamente.
Me gustaMe gusta
me gustaria conseguir una cocina de estas, sabrias donde???
Me gustaMe gusta
Esta en concreto en un poco pequeña pero el sistema no tiene ningún misterio como podrás ver en el vídeo, es un contenedor con mucha masa térmica donde hacer la combustión y una serie de conductos y compartimentos. Las de leña son un poco mas grandes, ya subiré un par de ellas aún en uso en casas de campo, pero el sistema es el mismo.
El problema suelen ser las chimeneas, que se han interrumpido o anulado en muchos de los edificios, pero si tienen continuidad a cubierta esta cocinas podrían seguir utilizándose con pelets de biomasa, otra cosa es que sean prácticas comparadas con el gas natural, por eso y por la falta de espacio en las viviendas acaban normalmente en el vertedero.
Me gustaMe gusta
Hola me gustaria saber si estas calderas se pueden seguir utilizando con biomasa en vez de con carbon. O que se necesita para daptarla a la biomasa.
gracias
Me gustaMe gusta