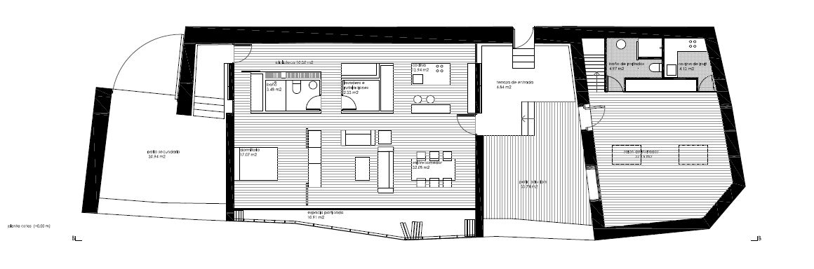
Como ya hemos hablado varias veces, el método para proyectar que seguimos en el estudio FARFANESTELLA se basa analizar la arquitectura tradicional preexistente en la zona y las soluciones que, por adaptación al entorno, han ido transformándola. De este análisis, sumado al estudio de las condiciones climáticas concretas de la zona y las necesidades del cliente, surge en este caso de vivienda unifamiliar en Fariza un volumen sencillo y compacto que situamos exento, elevado sobre la piedra y los muros de lajas de granito acuñado (cortinas) sin tocarlos, para diferenciar la actuación y que el impacto sobre el lugar sea mínimo.
Una de las soluciones que adoptamos del modelo tradicional fue la compacidad, renunciando a la segunda planta que permite la normativa, con el fin de proteger la edificación de los vientos y producir un impacto mínimo en el entorno, quedando los ventanales retranqueados tras un soportal y cerrado este a su vez por paneles móviles acabados con piedra del lugar.
El material con el que se construye en la zona es evidentemente el granito pero, al contrario de como se coloca actualmente, este va con la junta abierta (piedra seca) para evitar sobrecalentamiento en los duros meses de verano continental. Esta la solución adoptada para el acabado exterior; piedra granítica de las canteras del lugar de gran espesor sujetas con anclajes metálicos y junta ventilada es parte del sistema de climatización pasiva. De manera que aporten la inercia térmica necesaria, almacenando la energía en el interior en invierno e impidiendo la entrada del calor en verano.
Otros aspectos de la arquitectura popular de la zona adoptados es la cubierta ventilada y captadora, la recuperación del “sobrao” y el “hogar” central (chimenea recuperadora de calor), la ventilación cruzada y los grandes huecos captores al sur con embocadura con posibilidad de control de entrada de radiación.
Todos estos sistemas, sumados a algún aporte de geotérmia que nos gustaría incluir aprovechando el antiguo pozo, puede dar como fruto, en el momento en que nos pongamos con la obra, una vivienda autosuficiente, algo no tan extraño si tenemos en cuenta que las vivendas tradicionales de la zona lo han sido siempre.














